Stockholms Handelskammare är en mötesplats för både näringslivet och politiken. Foto: Åke E:son Lindman
Stockholms
Handelskammare
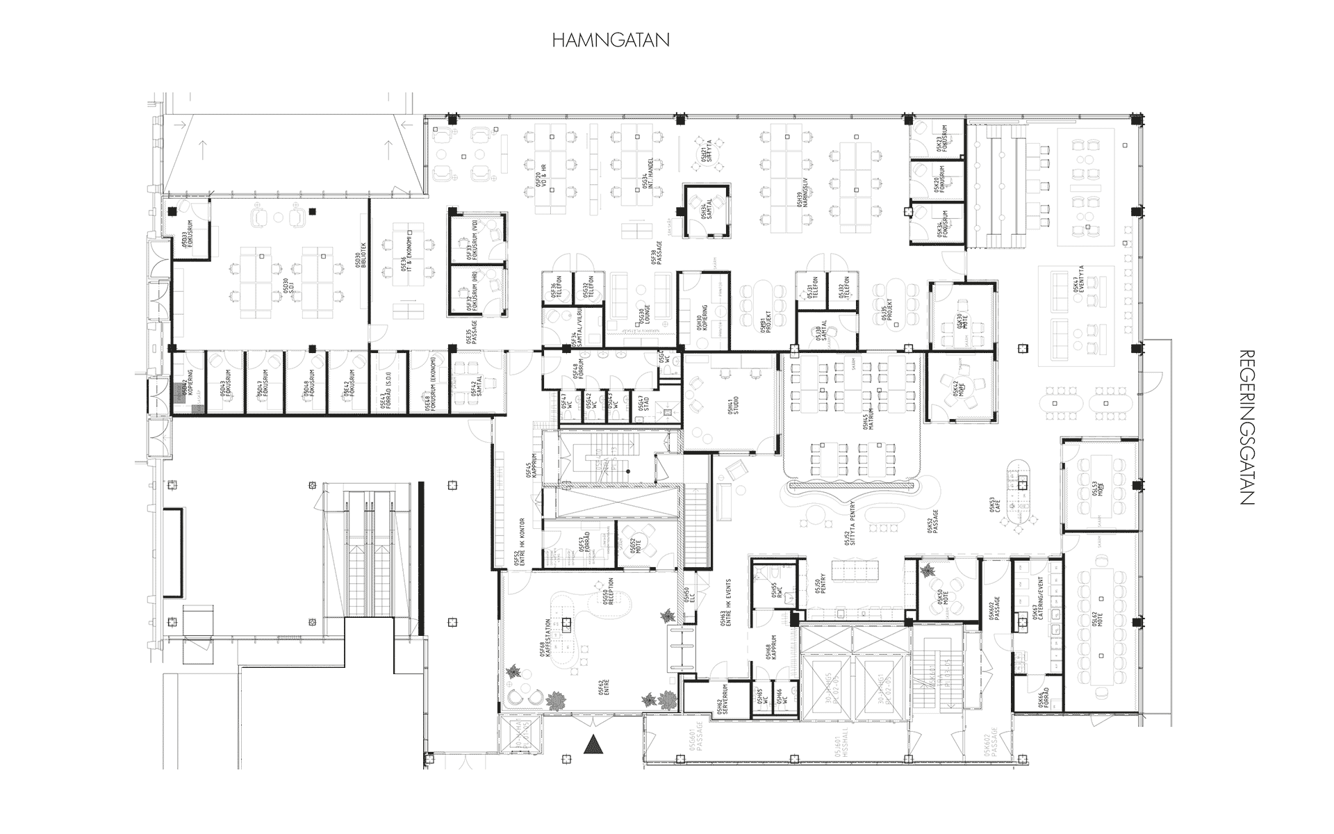
Stockholms Handelskammare är en mötesplats för både näringslivet och politiken. Organisationen är politiskt obunden och agerar utan vinstintresse för att främja en välmående huvudstadsregion. Handelskammarens nya lokaler ovan Gallerian i Urban Escape fungerar som arena för evenemang som debatter, rundabordssamtal och nätverksträffar. Samtidigt som det även är kontor för Handelskammarens olika avdelningar och Stockholms Handelskammares Skiljedomsinstitut (SCC).
Stockholms Handelskammare har genom hela projektet varit en modig och lyhörd beställare. Vi har lärt känna dem som en snabbfotad, kunnig och riktigt rolig organisation att jobba med.
I designarbetet har vi hämtat inspiration från verksamhetens publika (urbana) arbete och inspirerats av dess historia. Lokalen är utformad i två tydliga delar: En offentlig eventyta som har sin centrala del i hörnet mot Hamngatan/Regeringsgatan och en intern kontorsyta. Genom stora fönsterhål skapas fria siktlinjer mellan lokalens olika delar.
Extra fokus har lagts på utformningen av ett antal valda designelement som: Den rostfria receptionsdisken, en mjukt böljande soffvägg, kaffebaren och återbruk genom att uppdatera Handelskammarens historiska möbler. Målet har varit att skapa ett skräddarsydd projekt med design som väcker nyfikenhet.
Handelskammarens breda verksamhet gör att vi har arbetat med en flexibel utformning av lokalen där många delar har dubbla funktioner. Vi har också lagt stort fokus på en väl omhändertagen ljudmiljö med hjälp av designelement som mjuka väggar, stoppade möbler och panelväggar.
Foto: Åke E:son Lindman, Lindman Photography
 
			 
							


























